NUEVO AYUNTAMIENTO ALTEA

Teresa Carrau
Damian Terol
Eduardo Baviera

Altea, Alicante, España. 2020
Concurso Público.
Segundo premio exequo (primer premio desierto)

In NovaUNAltea

La plaza del Ayuntamiento, aUNAltea, sombreada en verano por arboles de hoja caduca, pavimentada en expansión de este. Conecta por el PUENTE con Altea DALT y por la calle Gabriel Miró con el MAR.

In Nova

El CESTILLO cae sobre la RETÍCULA: Así, DENTRO, un Ayuntamiento completamente NUEVO. FUERA, mantenemos la imagen, la MEMORIA del lugar. Llamamos CESTILLO a una peculiar fachada dentro de la RETICULA, con lamas horizontales mejoran el comportamiento bioclimático de los vidrios de control solar. Ese cestillo sube una planta para alojar un gran salón de plenos, multiuso y ampliable.

Sobre el cestillo, una Nueva CUBIERTA LIGERA ventilada de CONTROL y CAPTACIÓN SOLAR, con vuelos de sombra en verano.

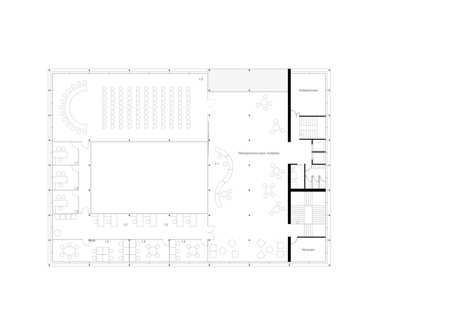
TRANSPARENCIA aún más patente en la planta baja, concebida como una SALA HIPÓSTILA clara y despejada. Proponemos que aloje la ATENCION al público e INFORMACIÓN al CIUDADANO, para minimizar el acceso a plantas superiores.

En las restantes plantas priman la CLARIDAD y FLEXIBILIDAD. En edificios administrativos lo permanente es el CAMBIO, por ello se organiza mediante PARTICIONES MODULARES con redes de instalaciones registrables por techo. Lo único rígido, la trama de pilares y el BLOQUE SERVIDOR, que ahonda en planta sótano los necesarios depósitos y permite la conexión con el APARCAMIENTO. Y un acceso alternativo al de la plaza.

Considerado el favorable régimen de BRISAS estacionales, se aprovecha el efecto chimenea del antiguo patio. La regulación mecanizada de cierres y lamas de la nueva cubierta permitirá la evacuación de aire caliente y viciado en verano, bajo la sombra.

Con la regulación de ventilación bajo la nueva cubierta ligera, disponemos de un colchón de aire, frío o caliente, entre esta y el Cestillo. La CAPTACION ENERGETICA de placas solares y fotovoltaicas, en combinación con los sistemas de aerotermia, optimizarán el consumo de las bombas de calor.

ESTUDIO ALBERTO BURGOS
ARQUITECTURA ALICANTE

Scroll al inicio